
column

このように考えている人は多いのではないでしょうか?
水回りがきちんとデザインできていれば、その暮らしぶりはとても充実したものになります。一方でこれに失敗して、後悔する人も少なくありません。
そこで本記事では以下の点を解説します。
本記事を読めば、どのような水回りをデザインすればよいかわかるはずです。ぜひご参考にしてください。
関連記事▶︎千葉県で「おしゃれ・安く」注文住宅を作るには?実例とコツを紹介!

水回りの間取りを考えるうえで、知っておくべきことは3つあります。
水回りの間取りで満足できる最大の理由は、動線が優れているからです。これさえきちんと考えられていればそう失敗することはありません。
また水回りをひとつにまとめたり、ある設備をひとつの空間にまとめたりするのも重要。それぞれ詳しく解説するのでご参考にしてください。
水回りの間取りで優先すべきなのは、何よりも動線です。つまり想定される動きのことですが、これが効率的であれば、満足のいく空間を作れます。
水回りの場合、一般的に以下の動線が好まれます。
上記ふたつは無駄な移動が減り、また「そこへ行くついでに何かやる」という効率のよい動き方ができるようになります。
もちろん上記いずれかでなければいけないとは決まってはいませんが、ひとつのセオリーとして覚えておくとよいでしょう。
施工事例▶︎ママの家事動線がスッキリ、暮らしやすい住宅|千葉県袖ヶ浦市
必ず、ではありませんが、水回りはひとつにまとめたほうがメリットが大きいとされています。
水回りを一つにまとめれば、排水構造が簡単になります。すると費用がかからなくなったり、メンテナンスがやりやすくなったりします。
また排水管がすっきりまとまるため、より広いスペースを確保できるようになることも。
水回りはできるだけひとつにまとめるようにしましょう。
施工事例▶︎キッチンから洗面台までが一列になった間取り|千葉県千葉市
多少精神的な抵抗はありますが、セパレートなどにこだわりすぎないようにしましょう。
ユニットバスなどを活用すれば、さらに便利で過ごしやすい空間になることもあります。
例えばトイレと洗面台が同じ空間になれば、ある程度の省スペースになるでしょう。またトイレが別室で区切られないため、動線もさらによくなります。
とはいえトイレ・風呂・洗面台と独立させたい気持ちは、衛生観念などを考えればもっともです。あくまでもひとつの選択肢として考えるようにしましょう。

冒頭で、「水回りの間取りで後悔する人は多い」と解説しました。これには多くの場合、以下のような原因があるようです。
間取りは、一度形になってしまうと、そう簡単には戻せません。だからこそすでにある失敗を知っておき、同じような間違いがないように徹底しましょう。
それぞれ詳しく解説するのでご参考にしてください。
まず水回りの間取りを分散させないようにしましょう。バラけてしまうと、以下のデメリットが生じるからです。
最も心配なのは、動線が複雑になり、普段の暮らしが不便になること。日頃からストレスを感じるようになるため、注意しなければいけません。
施工事例▶︎水回りを一点集中させた動きやすい動線|千葉県袖ヶ浦市
また、トイレと音の匂いで失敗しているケースもあります。匂いのほうはなんとかカバーできるかもしれませんが、特に音に悩まされることも。
少なくともリビングなどからは、やや距離を置いたほうがよいでしょう。もしくは防音性のある扉を使うなどの工夫も必要です。
南側に水回りを設置するのはおすすめできません。なぜなら最も劣化が激しくなるからです。
南側は、温度など変化しやすい方角。よってここに水回りの設備があると、カビや結露、水漏れなどが起こりやすくなります。
基本的に南側は水回りを設置しないようにしましょう。

水回りの間取りを考えるには、一度実際の図面を見たほうがわかりやすいでしょう。
ここではいくつかの間取り図を紹介するのでご参考にしてください。

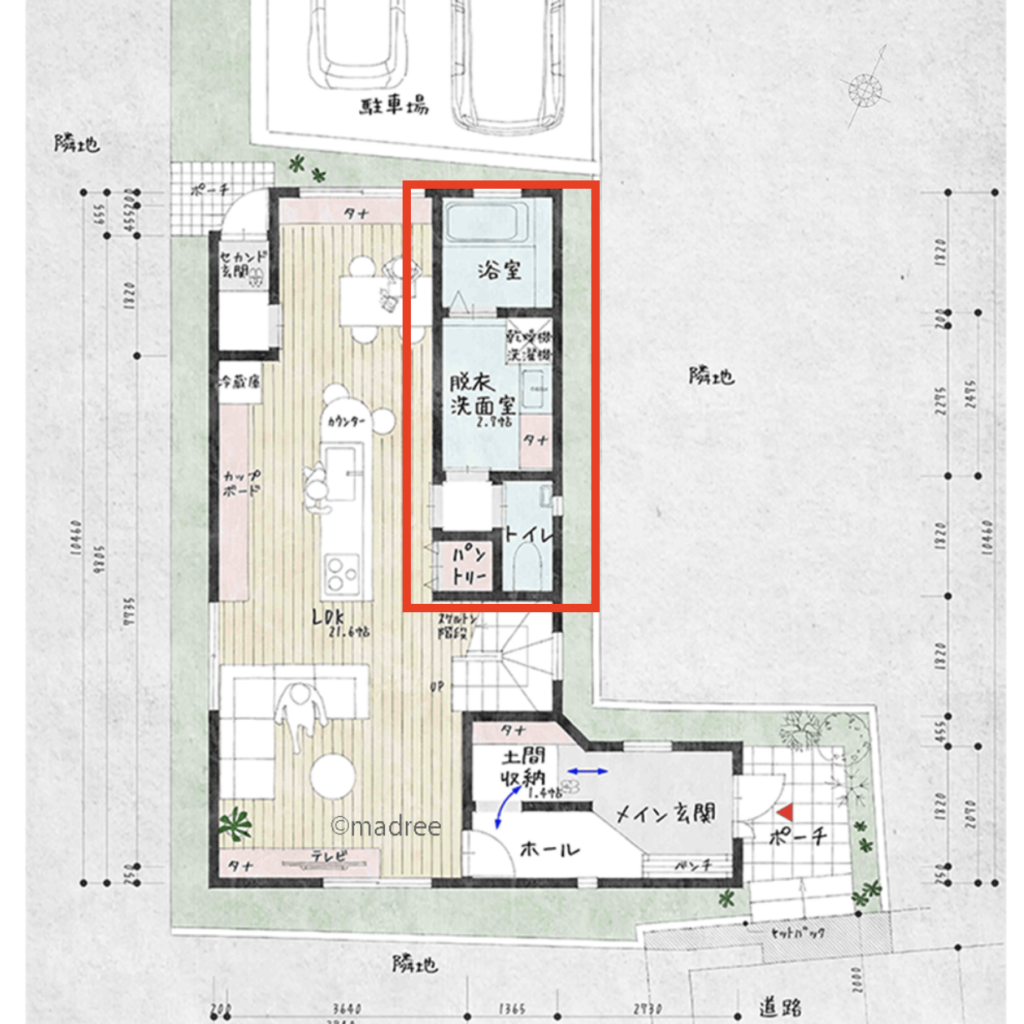
一直線上に水回りを集めた場合の間取り図です。
アイランドキッチンから右側に入れば、トイレ・洗面室・浴室がまとまっています。
トイレ前にはふたつの扉があり、リビングに対する音漏れの心配もなさそうです。

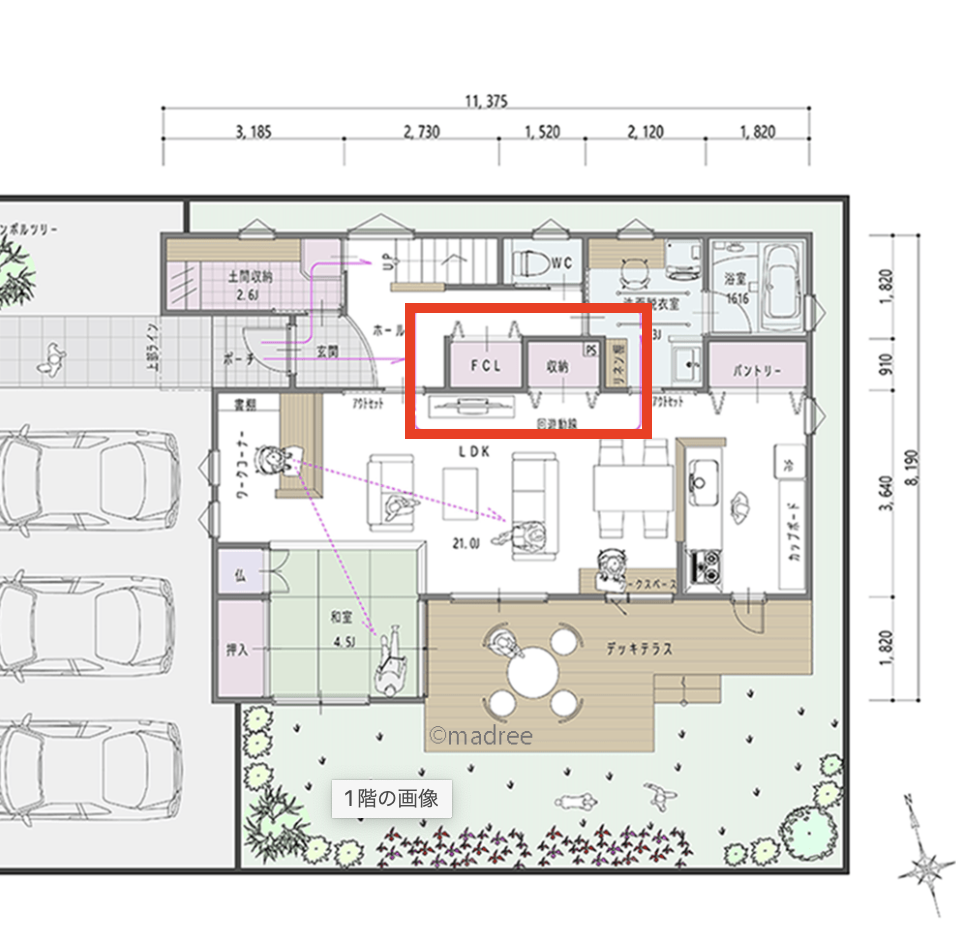
回遊性を持たせた間取りです。赤い線上が、回遊できる動線になっています。
トイレに行ったり、洗濯したりするうえで、器用に動き回れそうです。

水回りをひとつにまとめつつ、帰宅後すぐに手洗いができる間取りです。玄関から裏動線を通れば、洗面室に入ります。

本記事では水回りの間取りに関して解説しました。最後によくある質問に関して回答します。ぜひご参考にしてください。
2階に水回りを持ってくるときは、以下の点に注意しましょう。
特に重要なのは、1階に響く音が聞こえないようにすること。特にトイレの音が響かないように注意しましょう。
風水的に考えれば、水回りは家の中心には置かないほうがよいとされています。特にトイレが真ん中にあると、マイナスのエネルギーが家中に広がる、とのこと。
一方で南東は「財をなす方位」となるため、ここに水回りが置かれるケースが多くあります。
南側に水回りを配置すると、劣化が激しくなるため、おすすめできません。かといって北側に配置するのもNGです。
北風が吹き込みやすく、トイレやお風呂が寒くなりがち。また換気がうまく行かない問題もあり得ます。
水回りに関しては、南と北は避けるのがよいでしょう。
関連記事▶︎千葉県でおしゃれな新築平屋を建てる|暮らしやすい間取りのアイデア

本記事では、水回りの間取りに関して解説しました。最後に重要なポイントを解説します。
水回りは、日々の暮らしで毎日使い続ける重要な設備です。先ほども触れたとおり動線が重要なので、よく検討しましょう。
また全体的な話として、間取りは、一度形にしてしまうと簡単には修正できません。後悔しないように、じっくりと考えるようにしましょう。
新築住宅でお悩みの方は、ぜひ一度、千葉県のハウスメーカー、君津住宅にご相談ください。
これまでの豊富な施工経験から、理想的な水回りの間取りを実現します。
また下記では君津住宅の施工事例なども紹介しています。
さらに木更津と鎌取にはモデルハウスもございますので、ぜひ一度お越しください。
住所 : 千葉県千葉市緑区鎌取町54-1他
電話 : 043-291-1500
アクセス : JR「鎌取駅」より徒歩6分
住所 : 千葉県木更津市貝淵3-13-49
電話 : 0438-20-3771
アクセス : JR「木更津」駅より徒歩22分。館山自動車道「木更津南IC」より約6分
オンライン相談もご用意しています。土地探し・資金計画をはじめ、家づくりのどんなこともお気軽にお声かけください。
WEBで家づくりのご相談も承っております。↓